Fericirea prinde contur într-un spațiu creat pentru tine. Proiectul Pipera Concept 2 este dezvoltat în colaborare cu Puran Architecture și se remarcă printr-un concept tip boutique, cu arhitectură contemporană și proporții echilibrate. Exteriorul are un design modern, iar la interior se regăsesc apartamente organizate cu atenție, pentru a răspunde nevoilor de confort și funcționalitate. Imobilul are un regim de înălțime S+P+4.
Concept
Clădire tip boutique
Spații optimizate
Cele 54 de apartamente au fost proiectate pentru a îmbina estetica modernă cu funcționalitatea. Compartimentarea este clară și bine structurată, de la zona de acces până la spațiile destinate odihnei. Bucătăriile sunt deschise, cu posibilitatea de a fi separate, băile sunt amplasate eficient, iar terasele sunt ușor accesibile și practice. Suprafețele sunt confortabile, iar înălțimea liberă de aproximativ 2,8 m contribuie la un ambient luminos și aerisit. Astfel, Pipera Concept 2 propune un stil de viață echilibrat, în care spațiul capătă sens și armonie.
Atenția la detalii
Eleganța începe acolo unde standardele înalte întâlnesc funcționalitatea. Acestea se reflectă în toate componentele proiectului: finisaje interioare, spații comune și fațadă. Zona de acces și casa scării au fost concepute cu grijă, dar și cu produse de calitate, pentru a oferi o experiență plăcută și pentru a păstra eleganța în timp, fără a diminua utilitatea spațiilor rezidențiale.
Tipuri de apartamente
2A - 2 camere, 68 mp
Total S. Construită Terasă: 14.13 mp
Total S. Utilă: 56.93 mp
Hol acces: 6.34 mp
Living: 22.30 mp
Bucătărie: 5.80 mp
Baie: 4.79 mp
Dormitor: 14.67 mp
Depozitare: 3.04 mp
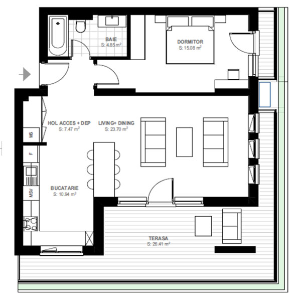
2B - 2 camere, 74 mp
Total S. Construită Terasă: 29.17 mp
Total S. Utilă: 62.05 mp
Hol acces: 7.47 mp
Living: 23.70 mp
Bucătărie: 10.94 mp
Baie: 4.85 mp
Dormitor: 15.09 mp
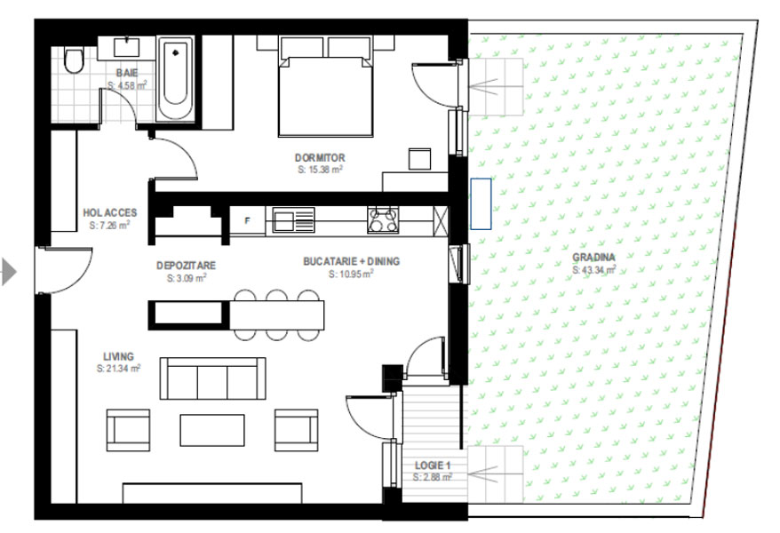
2C2 - 2 camere cu grădină
Total S. Construită Logie: 2.88 mp
Total S. Utilă: 62.60 mp
Hol acces: 7.26 mp
Living: 21.34 mp
Depozitare: 3.09 mp
Bucătărie: 10.96 mp
Baie: 4.58 mp
Dormitor: 15.38 mp
Total S. Utilă Grădină: 43.34 mp
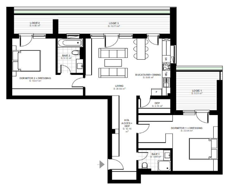
3E - 3 camere, 113 mp
Total S. Construită Logii: 31.84 mp
Total S. Utilă: 81.53 mp
Hol acces: 12.16 mp
Living: 20.64 mp
Depozitare: 2.74 mp
Bucătărie: 8.66 mp
Baie 1: 3.95 mp
Baie 2: 5.12 mp
Dormitor 1 + Dressing: 22.05 mp
Dormitor 2 + Dressing: 18.47 mp
3D1 - 3 camere, 97 mp
Total S. Construită Logie + Terasă: 35.17 mp
Total S. Utilă: 81.53 mp
Hol acces: 11.21 mp
Living: 23.70 mp
Bucătărie: 10.96 mp
Baie 1: 4.52 mp
Baie 2: 3.10 mp
Dormitor 1: 14.97 mp
Dormitor 2: 13.08 mp
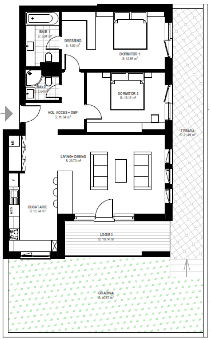
3I - 3 camere cu grădină
Total S. Construită Logie + Terasă: 32.93 mp
Total S. Utilă: 82.60 mp
Hol acces: 11.84 mp
Living: 23.70 mp
Bucătărie: 10.94 mp
Baie 1: 5.04 mp
Baie 2: 2.64 mp
Dormitor 1: 12.85 mp
Dressing: 4.09 mp
Dormitor 2: 13.13 mp
Află lista completă de prețuri și disponibilități!
Locație
Pipera, Voluntari, Ilfov
Pipera Concept 2 se află pe strada Elisabeta Lipă nr. 8A, o locație echilibrată, potrivită pentru familii și profesioniști activi. Accesul pe artere majore este facil. Ajungi ușor la unități de învățământ publice și private de top, zonele de birouri din Pipera și Aviației, centre comerciale, centre medicale și facilități pentru petrecerea timpului liber.























